Startseite | Kontakt | Impressum
Sie sind hier: Startseite » Stiegen » Stiegengrundrisse

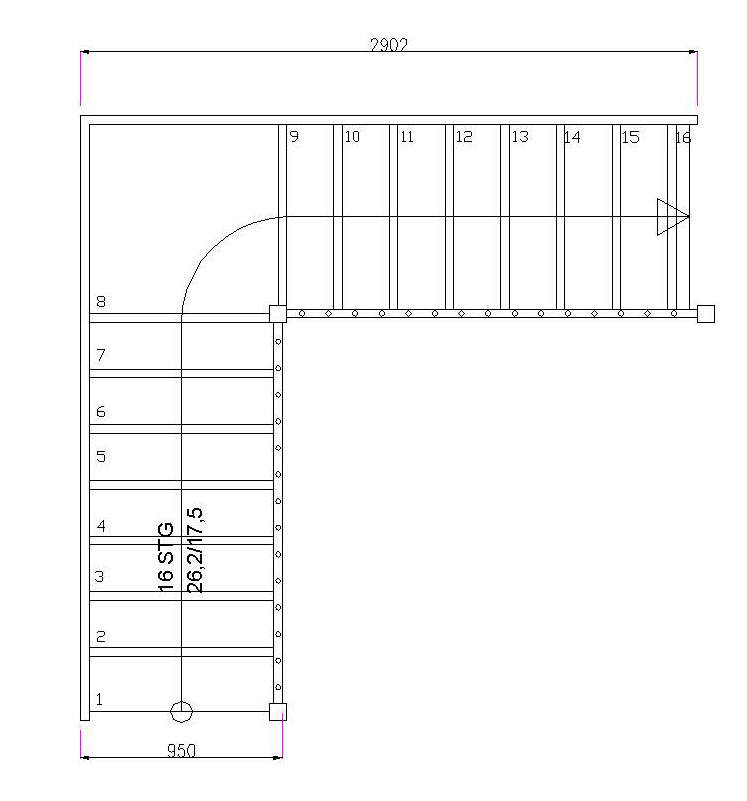
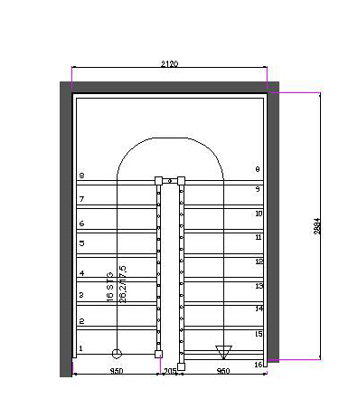
Grundrissformen

Spindel-Treppe gerade Stiege viertelgewendelte Stiege halbgewendelte Stiege
   
    viertelgewendelte Stiege mit Podest halbgewendelte Stiege mit Podest